Les interrupteurs sont devenus des incontournables dans nos intérieurs !
Une vie sans interrupteur est inimaginable aujourd’hui. Ils nous entourent partout dans notre habitation, notre lieu de travail et les espaces communs.
Depuis l’ère du temps ou on s’éclairait à la bougie, il y a eu beaucoup d’évolution. On a fait des grands progrès et aujourd’hui on est dans l’air de l’automatisation.

Et la lumière fut …
Que faites-vous quand la lumière du jour baisse ? On pousse sur un interrupteur pour allumer un éclairage intérieur.
Ca nous semble tellement naturel qu’on oublie l’importance des interrupteurs dans notre quotidien.

En cherchant l’origine de l’interrupteur, je suis tombée sur l’article: « Le petit musée de l’interrupteur ». L’histoire de l’interrupteur bien relaté depuis son origine vers 1880 et qui pourrait vous intéressé.
www.heure-industrielle.com/petit-musee-de-l-interrupteur/
Les interrupteurs ont leurs importances !
Pourquoi je vous parle des interrupteurs ? Et bien, parce que c’est tellement une évidence qu’on en oublie qu’il est important de :
- Choisir ou on les positionne
- Penser à les placer à la bonne hauteur
- Savoir combien il en faut
- Qu’ils existent plusieurs coloris
- Qu’ils existent des formes différentes pour se démarquer des autres
Bref, vous l’aurez compris des interrupteurs ça ne s’improvise pas ! Il est important d’y réfléchir avant de commencer vos travaux de constructions ou de rénovations.

Les lecteurs ont aussi aimé lire : Comment bien choisir l’emplacement de vos prises électriques ?
Comment faire pour bien positionner vos interrupteurs ?
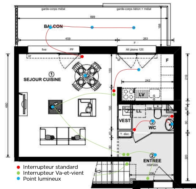
Etape N°1 : Le plan de votre logement
Le plus simple est de commencé par prendre le plan de votre habitat.
Vous n’en avez pas ? No stress, vous prenez une feuille blanche et vous faite un croquis en traçant les murs de votre logement ou uniquement la pièce que vous souhaitez rénover.
A ne pas oublier : pensez à dessiner vos portes et fenêtres avec leurs sens d’ouvertures ! Cela est utile pour savoir s’il faut positionner l’interrupteur à droite ou gauche de vos menuiseries.
A prévoir : une copie de vos plans ou une feuille avec des petits carrés pour vous aider à dessiner.
Etape N°2 : Implantation du mobilier
Dessinez sur une copie de vos plans ou croquis à l’aide d’un crayon, des volumes pour représenter votre mobilier.
Vous aimez bouger votre mobilier de place ?
Faites vous parti des personnes qui aiment changer leurs meubles de place une ou deux fois par an quand vous faite le grand ménage ou aux changements de saison ?
Alors, si vous pensez qu’il est possible d’implanter votre mobilier différemment, faite plusieurs versions d’implantations.
Le plus facile est d’utiliser un calque que vous positionner sur votre plan existant ou votre dessin de base.
Prévoir : des crayons, des feutres, une gomme, une feuille blanche et du calque.

Etape N°3 : Les points lumineux
Maintenant que vous avez dessiné toutes vos implantations possibles, vous tracé des ronds pour représenter vos points de lumières existants ou ceux que vous envisagez de créer.

Etape N°4 : La circulation
Analyser comment vous circulez ou vous allez circuler dans votre habitat.
Pourquoi est-ce important de connaitre comment circuler chez vous ?
C’est important d’analyser votre manière de circuler dans votre habitation parce que ça va vous aider à définir le bon emplacement de vos interrupteurs.
Exemple N°1: dans une chambre à coucher il est pratique de pouvoir allumer la lumière en rentrant dans la pièce et de l’éteindre quand on se trouve dans son lit.

Exemple N°2 : Vous avez une cuisine, séjour, buanderie, garage, … avec 2 accès possible ? Il serait pratique de pouvoir allumer la lumière d’un côté de la pièce et de pouvoir éteindre de l’autre côté.

Etape N°5 : Faites appel à un professionnel !
Vous n’êtes pas du métier d’électricien, faites intervenir un professionnel.
Pour une construction neuve:
Prenez le temps de bien à analyser vos plans et de valider avec votre constructeur ou promoteur la quantité et le positionnement de vos interrupteurs et prises électriques.
Attention: Souvent dans le prix de base , il vous est proposé une certaine quantité d’interrupteur et de prise électrique. Il y aura un supplément si vous en rajouté. N’hésitez pas si c’est vraiment utile parce que plus tard ça vous en coutera plus cher.
Vous avez un projet de rénovation :
Vous êtes un bon bricoleur, c’est parfait, mais n’oublié pas qu’il y a des normes à respecter. Il est toujours plus prudent de faire appel à un professionnel pour valider ce que vous avez fait.
Vous ne savez pas faire, demandez dans votre entourage les coordonnées d’un bon électricien pour réaliser vos travaux.
Attention : Avoir un certificat de conformité par un professionnel aura son importance en cas d’incendie ou autre problème électrique pour votre assureur.

En conclusion
J’espère vous avoir convaincu l’importance d’analyser le positionnement de vos interrupteurs sur vos plans ou croquis avant de démarrer vos travaux.
Ils existant nombreuses marques aujourd’hui qui proposent des interrupteurs simples et design. Je vous invite à visiter les sites ci-dessous qui m’ont inspiré.
ET VOUS ?
Avez vous pris le temps d’analyser vos plans pour bien définir l’emplacement de vos interrupteurs ?
Aujourd’hui, si vous deviez refaire votre électricité: qu’est-ce que vous changeriez ?
Partager ci-dessous vos commentaires !
Merci d’avoir lu jusqu’au bout et à bientôt pour mon prochain article « Pourquoi un vide sanitaire est utile dans votre cuisine ? ».
A très vite !
Fabienne Luypaert
Architecte d’intérieur


9 réponses sur « Les interrupteurs: les incontournables de nos espaces de vie ! »
Je trouve que les interrupteurs sont un peu « la touche finale » pour embellir une pièce. Merci pour tous tes bons conseils.
merci Jackie pour ton retour. En effet, ils font de belles choses aujourd’hui en matière d’interrupteurs.
Ah les normes électriques ! Si Cloclo avait fait appel à un pro on aurait pu avoir quelques chansons entraînantes de plus dans nos playlists de soirée.
Tu as tout fait d’accord, j’aurai bien aimé qu’il soit encore parmi nous, c’était mon idole quand j’avais 10 ans.
Il y a tellement de beaux interrupteurs dans le commerce, mais les prix s’envolent vite ! Mais enfin, si déjà on les a positionné au bon endroit on a déjà tout bon, et dans ma maison il y a eu des bizarreries en ce sens. J’imagine que cela doit vite finir comme ça dans les vieilles maisons rénovées.
Merci pour ton article, tes plans m’inspirent.
Wow ! Des interrupteurs de toutes les formes et toutes couleurs ! Oui leur configuration est tellement importante pour ne pas à avoir à les chercher lorsque l’on est en visite quelque part.
Merci pour ton commentaire.
C’est vrai que les interrupteurs bien placés sont importants. Le chois esthétique aussi a une grande importance. Il y en a vraiment pour tous les goûts maintenant, tout comme les poignées de porte… Merci pour ton article qui s’adresse à tous.
Merci à toi pour ton retour.